Piso tipo loft exclusivo y de diseño proyectado por arquitectos. Localizado en un edificio histórico del centro de Madrid, en el barrio de Malasaña. A estrenar.
La vivienda es el resultado de un trabajo artístico, en el que se combinan espacios estéticos, armoniosos y funcionales. Es exterior y luminoso con 3 balcones a la calle, con techos altos y estructura de madera vista original del edificio.
Es un piso único, de autor. Se ha diseñado íntegramente a medida: la cocina, la biblioteca, los armarios, los muebles de los baños, las duchas italianas. Suelo de madera.
Hasta el mínimo detalle está diseñado y construido de forma exclusiva.
Se ha prestado particular atención para elaborar un sistema de iluminación cálido, con detalles y de bajo consumo.
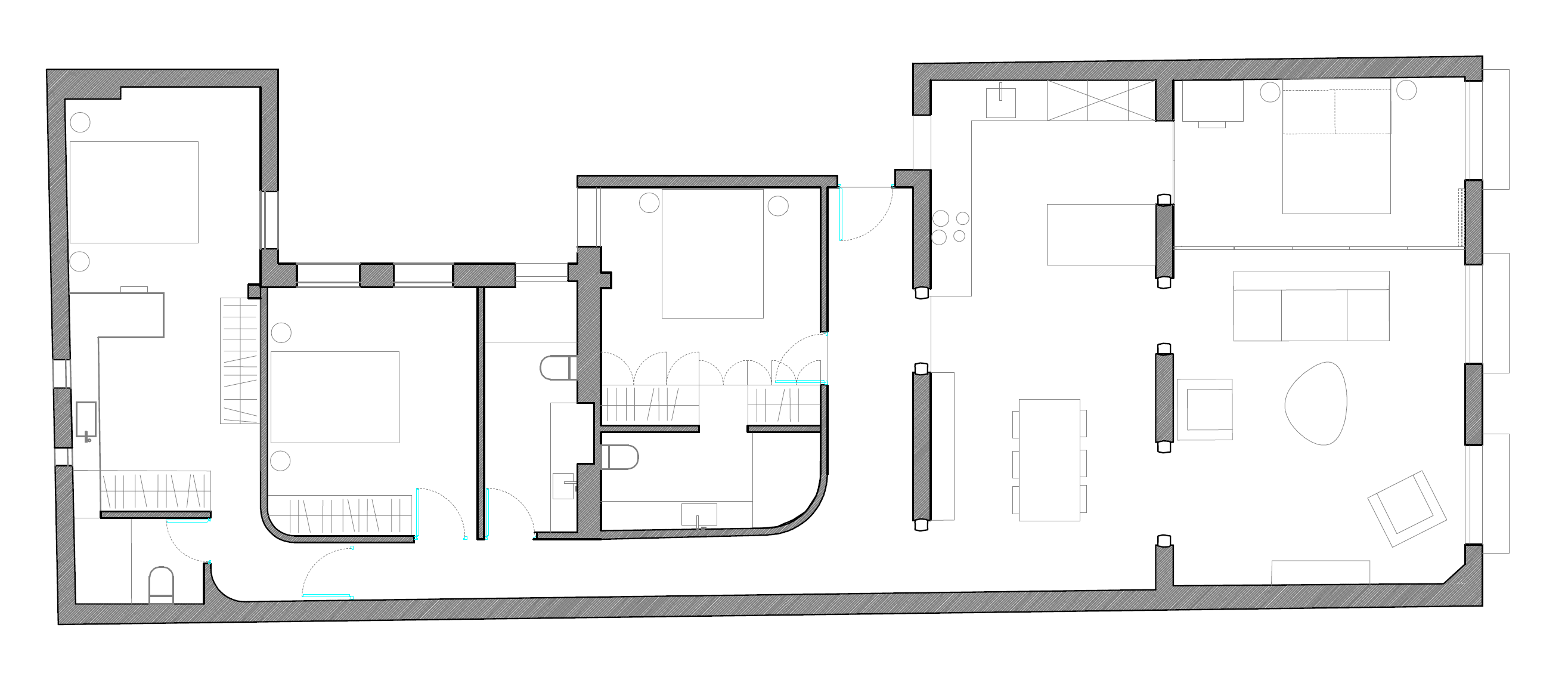
Distribución: Gran openspace cocina abierta-comedor-salón, dormitorio principal con baño en suite y vestidor, dormitorio de invitado y baño de invitados, otro dormitorio con baño en suite y vestidor, y habitación modular separada del salón por paneles que se pueden abrir.
162m2, Planta 3, exterior, ascensor, aire acondicionado, calefacción individual por gas, trastero
AMPLIO Y CÁLIDO
Un espacio principal de más de 60m2 pensado para adaptarse a la vida moderna, abierto y a la vez íntimo, con separaciones naturales: la estructura original de madera vista separa el espacio sin cerrarlo
3 balcones para esta zona
Pilares y vigas de madera estructurales originales del edificio iluminados por el suelo














ACOGEDOR Y MODERNO
La cocina abierta es un lugar de encuentro
Cocina 100% a medida, respetando el diseño, los materiales y los colores del resto del piso
Isla central que se mueve, con azulejos
Materiales de alta calidad como las encimeras de Caliza o los herrajes "push" y "soft stop"
Biblioteca a medida

















ESPACIO PERSONAL Y LUJO A MEDIDA
Amplios armarios a medida de acabado blanco lacado concebido para aprovechar la altura de techo
Pared con textura
Baño de diseño con aseos y ducha italiana












¡VIVA EL COLOR!
Ducha italiana que aprovecha la altura de techo, aseos y mueble a medida
Rayas de color terracota y blanco




PARA LOS INVITADOS
Armario a medida de acabado blanco lacado
Acceso secreto a un baño en suite






PARA TODA LA FAMILIA O INVITADOS
Armario empotrado a medida de acabado blanco lacado concebido para aprovechar la altura de techo






PARA LOS INVITADOS
Paneles acordeón y correderos que pueden separar esta habitación modular del salón



TEXTURA, COLOR, TACTO
Hemos utilizado el blanco de las paredes y de los muebles lacados, dominante en el piso, para
crear contrastes de colores con otros materiales:
- Azulejos color verde en la entrada, en las mesas, y detalles verdes en la cocina
- Madera del suelo, de los pilares
CALIDEZ Y DETALLE
La iluminación es un aspecto clave de la calidez de una vivienda, que sea por la noche o en
invierno, por lo cual se ha dedicado una atención particular a la iluminación del piso, cuidando el diseño, el tono, la intensidad y la integración de cada elemento
Hemos recurrido a muchos sistemas de iluminación distintos, principalmente con tecnología LED de bajo consumo
Unos ejemplos:
- Empotrado "secret" de pared en el pasillo y en el dormitorio principal
- Tiras LED en la cocina, los baños, la bañera así como en ciertos muebles
- Lámparas suspendidas de diseño en la mesa de comedor
- Empotrados de suelo delante de los elementos estructurales del piso
INFORMACIONES
- Gran openspace Cocina / Comedor / Salón
- 1 dormitorio principal con baño en suite y vestidor
- 2 dormitorios de invitados (uno con baño en suite)
- 1 baño de invitados
- 1 dormitorio modular
- En torno a 20m3 de almacenamiento en los muebles
- 162 m2 construidos
- 3era planta exterior
- 4 dormitorios, 3 baños, cocina-comedor-salón abierto
- Ascensor
- 3 balcones a la calle
- 2 pisos por planta
- Altura techos: 3,05m
- Estructura de madera original del edifico a la vista
- Edificio de 1880
- Fachada emblemática
- Calefacción individual por gas
- Aire acondicionado
- Trastero

La calle Pez está por la nueva zona de moda de Madrid, se ha convertido en uno de los barrios más dinámicos y atractivos, cada vez más refinado. Una mezcla entre Le Marais en París, Meatpacking en Nueva York o Shoreditch en Londres
Situado en el centro histórico y al lado de las principales arterias de Madrid, Pez 11 sigue teniendo la esencia de un barrio tradicional
Por el barrio encontrarás los mejores bares de cocktail y los restaurantes más modernos en las calles Pez y Corredera Baja de San Pablo
A escasos metros también el Teatro Alfil y el Microteatro, el Mercado de San Idelfonso, así como numerosas tiendas de moda
Pez 11 está a pocos minutos a pie de los principales puntos de interés de la ciudad tales como el Palacio Real, la Plaza Mayor, la Plaza 2 de Mayo, la Plaza de España, el Palacio de Correos, el Parque





